Le mot de l'annonceur
EXCLUSIVITE / 72170 - LE TRONCHET - PROXIMITE LE MANS - LONGERE - 3 HECTARES - DEPENDANCES - BOXES
Sur plus de 3 hectares, nichée au cœur d'un écrin de verdure à seulement 15 minutes du Mans, venez découvrir cette perle rare alliant charme et authenticité. Que vous soyez amoureux de la nature en quête d'un environnement préservé, ou passionné de chevaux désireux de vivre quotidiennement aux côtés de vos équidés, cette propriété vous permettra de mener à bien votre projet de vie.
Efficity, l'agence qui estime votre bien en ligne, vous propose cette longère lumineuse et rénovée de 149m², 6 pièces, avec jardin, dépendances, boxes et prés.
Le bien est composé comme suit :
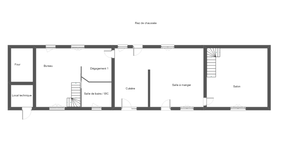
- au rez-de-chaussée: cuisine aménagée ouverte sur salle à manger, salon, grande pièce (transformable en chambre), salle de bains avec wc, coin buanderie,
- à l’étage: palier, mezzanine, trois chambres, salle d’eau avec wc,
- à l'extérieur : terrasse, jardin, dépendances, deux boxes, prés.
Chauffage mixte par pompe à chaleur air/eau et poêle + cheminée insert à bois. Production d'eau chaude par ballon électrique.
Aucun travaux à prévoir.
Informations, photos et plans complémentaires sur demande.
EXCLUSIVE / 72170 - LE TRONCHET - NEAR LE MANS - LONGERE - 3 HECTARES - OUTBUILDINGS - BOXES
Set in over 3 hectares, nestling in the heart of a green setting just 15 minutes from Le Mans, come and discover this rare gem combining charm and authenticity. Whether you are a nature lover looking for an unspoilt environment, or a horse enthusiast wishing to live alongside your equine companions on a daily basis, this property will enable you to realise your life project.
Efficity, the agency that estimates your property online, offers you this light and renovated longère of 149m², 6 rooms, with garden, outbuildings, loose boxes and meadows.
The property comprises
- ground floor: fitted kitchen opening onto dining room, lounge, large room (convertible into bedroom), bathroom with wc, laundry area,
- first floor: landing, mezzanine, three bedrooms, shower room with wc,
- Outside: terrace, garden, outbuildings, two loose boxes, meadows.
Combined air/water heat pump and wood-burning stove + fireplace. Electric hot water tank.
No works required.
Further information, photos and plans on request.
EXCLUSIVO / 72170 - LE TRONCHET - CERCA DE LE MANS - LONGERE - 3 HECTÁREAS - DEPENDENCIAS - BOXES
Situada en más de 3 hectáreas, en el corazón de un entorno verde a sólo 15 minutos de Le Mans, venga a descubrir esta rara joya que combina encanto y autenticidad. Tanto si es un amante de la naturaleza que busca un entorno virgen, como si es un apasionado de los caballos que desea vivir a diario junto a sus compañeros equinos, esta propiedad le permitirá realizar su proyecto de vida.
Efficity, la agencia que estima su propiedad en línea, le propone esta longère luminosa y renovada de 149m², 6 habitaciones, con jardín, dependencias, boxes y prados.
La propiedad se compone de la siguiente manera
- planta baja: cocina equipada abierta al comedor, salón, habitación grande (convertible en dormitorio), cuarto de baño con wc, lavadero,
- primera planta: rellano, entresuelo, tres dormitorios, cuarto de ducha con wc,
- Exterior: terraza, jardín, dependencias, dos cajas sueltas, prados.
Bomba de calor aire/agua y estufa de leña + chimenea. Depósito de agua caliente eléctrico.
Sin obras.
Más información, fotos y planos a petición.
EXKLUSIV / 72170 - LE TRONCHET - NÄHE LE MANS - LONGERE - 3 HEKTAR - NEBENGEBÄUDE - BOXEN
Auf mehr als 3 Hektar, eingebettet in eine grüne Oase, nur 15 Minuten von Le Mans entfernt, entdecken Sie diese seltene Perle, die Charme und Authentizität vereint. Ob Sie nun ein Naturliebhaber auf der Suche nach einer geschützten Umgebung oder ein Pferdeliebhaber sind, der täglich an der Seite seiner Pferde leben möchte, dieses Anwesen bietet Ihnen die Möglichkeit, Ihre Lebenspläne zu verwirklichen.
Efficity, die Agentur, die Ihre Immobilie online schätzt, bietet Ihnen dieses helle und renovierte Bauernhaus von 149m², 6 Zimmer, mit Garten, Nebengebäuden, Boxen und Wiesen.
Die Immobilie setzt sich wie folgt zusammen:
- Erdgeschoss: offene Einbauküche mit Esszimmer, Wohnzimmer, großer Raum (kann in ein Schlafzimmer umgewandelt werden), Badezimmer mit WC, Waschküche,
- Obergeschoss: Treppenabsatz, Mezzanin, drei Schlafzimmer, Badezimmer mit WC,
- Außen: Terrasse, Garten, Nebengebäude, zwei Boxen, Wiesen.
Gemischte Heizung durch Luft/Wasser-Wärmepumpe und Kaminofen + Holzeinsatz. Warmwassererzeugung durch elektrischen Speicher.
Es sind keine Arbeiten vorzusehen.
Weitere Informationen, Fotos und Pläne auf Anfrage.
ESCLUSIVA / 72170 - LE TRONCHET - VICINO A LE MANS - LONGERE - 3 ETTARI - ANNESSI - BOX
Su una superficie di oltre 3 ettari, immersa nel cuore di un ambiente verde a 15 minuti da Le Mans, venite a scoprire questo raro gioiello che unisce fascino e autenticità. Che siate amanti della natura alla ricerca di un ambiente incontaminato o appassionati di cavalli che desiderano vivere quotidianamente al fianco dei vostri compagni equini, questa proprietà vi permetterà di realizzare il vostro progetto di vita.
Efficity, l'agenzia che valuta i vostri immobili online, vi propone questa longère luminosa e ristrutturata di 149 m², 6 vani, con giardino, annessi, box sciolti e prati.
La proprietà è composta da
- piano terra: cucina attrezzata che si apre sulla sala da pranzo, salone, ampia camera (trasformabile in camera da letto), bagno con wc, zona lavanderia,
- primo piano: pianerottolo, mezzanino, tre camere da letto, bagno con doccia e wc,
- Esterno: terrazza, giardino, annessi, due box sciolti, prati.
Pompa di calore combinata aria/acqua e stufa a legna + camino. Serbatoio elettrico per l'acqua calda.
Non sono necessari lavori.
Ulteriori informazioni, foto e planimetrie su richiesta.
EXCLUSIEF / 72170 - LE TRONCHET - BIJ LE MANS - LONGERE - 3 HECTARE - BIJGEBOUWEN - BOXEN
Gelegen op meer dan 3 hectare, genesteld in het hart van een groene omgeving op slechts 15 minuten van Le Mans, kom en ontdek dit zeldzame juweeltje dat charme en authenticiteit combineert. Of u nu een natuurliefhebber bent die op zoek is naar een ongerepte omgeving, of een paardenliefhebber die dagelijks wil samenleven met uw paarden, dit eigendom zal u in staat stellen om uw levensproject te realiseren.
Efficity, het agentschap dat uw eigendom online schat, biedt u deze lichte en gerenoveerde longère van 149m², 6 kamers, met tuin, bijgebouwen, boxen en weiden.
De woning is als volgt samengesteld
- begane grond: ingerichte keuken met toegang tot eetkamer, woonkamer, grote kamer (om te bouwen tot slaapkamer), badkamer met wc, wasruimte,
- eerste verdieping: overloop, mezzanine, drie slaapkamers, doucheruimte met wc,
- Buiten: terras, tuin, bijgebouwen, twee losse boxen, weiland.
Gecombineerde lucht/water warmtepomp en houtkachel + open haard. Elektrische warmwatertank.
Geen werkzaamheden nodig.
Meer informatie, foto's en plattegronden op aanvraag.